産(chǎn)品詳情
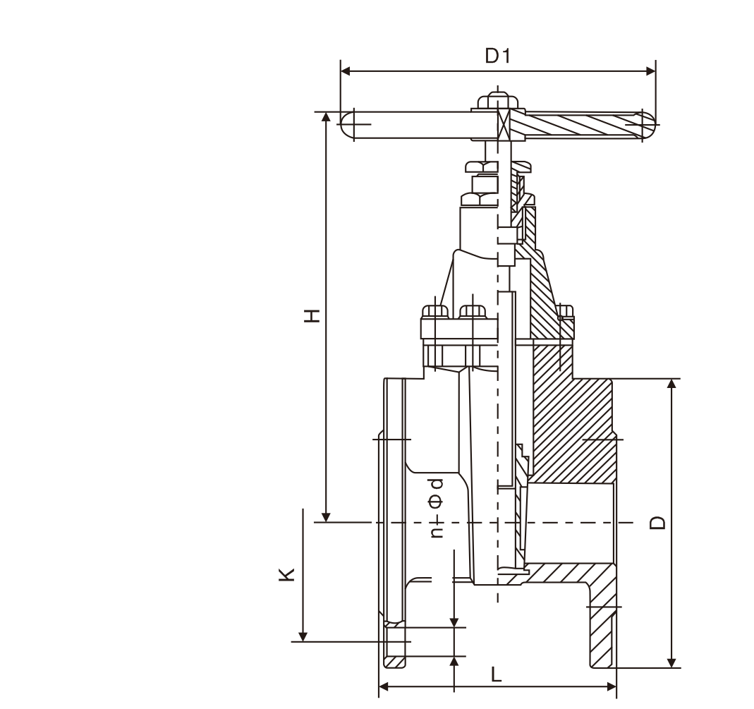
主要外(wài)形連接尺寸(cun)
|
DN(mm) |
NPS(in) |
L |
H |
D |
K |
D1 |
n-Φd |
|
15 |
1/2 |
81 |
78 |
95 |
65 |
58 |
4-14 |
|
20 |
3/4 |
90 |
87 |
105 |
58 |
4-14 | |
|
25 |
1 |
105 |
115 |
85 |
71 |
4-14 | |
|
32 |
11 / |
113 |
120 |
140 |
100 |
78 |
4-18 |
|
40 |
1/ 2 |
119 |
125 |
150 |
110 |
97 |
4-18 |
|
50 |
2 |
119 |
155 |
125 |
107 |
4-18 | |
|
65 |
2/
|
137 |
172 |
145 |
4-18 | ||
|
80 |
158 |
196 |
160 |
175 |
8-18 | ||
|
100 |
4 |
174 |
245 |
215 |
180 |
193 |
8-18 |
蘇公網(wǎng)安備 32010202011315号